Cholera had the world in its grip during the 19th century. Six separate pandemics of the intestinal disease began between 1817 and 1899, each of them originating from the Indian subcontinent. The third outbreak, beginning in 1846, was among the deadliest of any pandemic of that century. This pandemic claimed more than one million lives across Asia and Europe. Life in Victorian London turned bleak as ten thousand deaths mounted between 1853 and 1854.
Each of these outbreaks took an enormous toll on human lives. They also strained, and later grew, our scientific understanding of how the disease spread.
The Story You Probably Heard
At the time, cholera was poorly understood. Numbers of the ill and dead rose rapidly, but no one was quite sure how the disease was proliferating. One popular theory at the time suggested the disease found new hosts through miasma, or unpleasant odors and vapors. Others believed cholera was caused by germ theory: A yet-to-be-discovered germ was somehow being passed along from person to person. Despite what we know today, the latter theory received some ridicule and criticism from doctors and scientists of the time.
But John Snow, an English physician who supported the germ theory, was armed with another tool his peers overlooked: cartography.
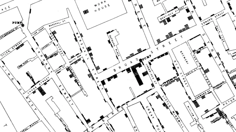
By mapping the number and locations of cholera cases, John Snow revealed and understood the pattern at once. Cholera cases soared near the Broad Street water pump, so water must have been the culprit.
The mystery was solved at last. He took these findings to the city. The pump was removed. And cholera in London abated. This was a catalyst for similar actions elsewhere, and the cholera pandemics would soon be in the past.
Or at least that’s the version of the story that is often told in geography courses and throughout popular culture. This faulty but widespread mangling of history even shows up in textbooks and online articles. It has become a historical underpinning of the fields of geography and epidemiology, often repeated by renowned experts and public figures.
But that version of history is wrong. Things simply did not happen that way. And you might be surprised to learn that John Snow didn’t even make the map, or that the famous map was not nearly the first of its kind.
Truth in Cholera and Cartography
The famous map centered on Broad Street did not lead to an ‘a-ha!’ moment, nor was it the way in which Snow came about the truth behind cholera’s transmission. Simply put, the map played no role in the discovery of how cholera spread, the decline of the disease, or the removal of the Broad Street pump.
In 1849, five whole years before the famous map, John Snow published his arguments in a work titled On the Mode of Communication of Cholera. In this short book, Snow does not mince his words: Cholera was spread from one infected person to another, and from one befouled village or city to the next. Ruling out the miasma (or effluvium) theory and concluding that cholera was not a poisoning of the blood, Snow turned his sights on the digestive tract. Cholera, he determined, was transmitted by contaminated food or drink. More specifically, Snow homed in on the fact that many cholera outbreaks occurred where cities emptied their sewers or washed the laundry of the ill in drinking water. Cholera, he argued, is a germ, and tainted water is the primary route of infection.
Snow did not use a map to arrive at his conclusion. Instead, he holistically assessed the symptoms of patients, how they used and consumed water, and the conditions and municipal treatment of the water supply. He described how various sources of water smelled and even tasted, the water’s clarity, and whether upon drying it left behind residue. In this way, Snow systematically formed a hypothesis and used data to support his argument. With each step, the haze and mystery gave way and the truth began to emerge.
Geography still played a role in Snow’s analysis, though the closest he came to anything mappable at this time was a table of deaths from cholera by district.
Snow described which sewers emptied into certain rivers, how storms and floods could transfer contaminated water to cleaner sources, and how the spread of cholera was influenced by both time and place. In other words, the only map properly ascribed to John Snow alone was a mental map—a connecting of multiple data points and situations from which he could draw conclusions. It is that mental map, his piecing together of facts in relation to their spatial arrangement and knowledge of symptoms following a timeline of events, that led him to properly identify how cholera spread.
Snow examined water, met with patients and residents, and analyzed disparate patterns. He took these arguments to the city, who found them to be sound and well-documented. On September 8, 1854, the local council removed the pump on Broad Street.
This action may have slowed further spread of cholera in the area. But as Snow acknowledged in the aftermath of the initial outbreak, people leaving the city would have also caused such a decline in cholera as to be indistinguishable from the impact of closing the well.
The well was shuttered, cholera was in decline, and the famous map did not yet exist.
But others were already mapping the impact of cholera in their regions. In 1849, epidemiologist and physician Thomas Shapter published a book titled The History of Cholera in Exeter in 1832. The book leads with a map of cholera deaths in Exeter during the years 1832-1834. It shows buildings, yards, the River Exe, the locations of cholera deaths, where bodies were buried, and where clothes were burned. Charles Risdon is credited with the lithography.
Unlike the Broad Street map that would be produced five years later, no association to wells or water supply, other than the river, is made. Yet, even without any subtle addition of color, the Broad Street map would bear a striking resemblance to its Exeter counterpart. That is no accident.
In the second edition of Snow’s book, published in 1855 and in which the Broad Street map first appears, Snow cites Shapter’s 1849 book containing the Exeter map. Snow knew of this earlier map and commissioned cartographer and lithographer Charles Cheffins to produce one focused on London’s Soho District and Broad Street. By the time Snow’s second edition and the famous map were published, the well was closed and the pandemic was already in decline.
Shapter’s map of Exeter was at least the third to relate the aftermath of cholera to neighborhood-scale geography. An earlier outbreak of cholera hit France in the 1830s. In 1833, Dr. Eugène-Clément Hellis, a proponent of the miasma theory, published a map of the toll taken by cholera in the city of Rouen. The following year, French cartographer Charles Picquet showed cholera deaths in Paris as a choropleth map.
Each of these examples follow much earlier work mapping disease, predating the cholera pandemics entirely. One key example includes the work of Valentine Seaman, who mapped the 1795 yellow fever outbreak in New York. Seaman believed waste sites played a role in the spread of yellow fever and created a series of maps in 1798 showing how these areas related to cases of the illness. Despite noting the presence of mosquitos at waste sites and recommending the removal of stagnant water, Seaman never directly connected the transmission to the insects.
Why It Matters
Although the Broad Street Map made by Charles Cheffins played no role in John Snow determining how cholera spread, it still underscores a key purpose of cartography: communicating what we know about the world around us.
Snow knew that geography and proximity to tainted wells was the stage on which the pandemic played out and outlined his theory in his 1849 book. But it is the map, not the book, that brings attention and clarity to the way cholera spread throughout Victorian London (and indeed elsewhere in the world). It is the map that appears in numerous lectures, popular anecdotes, and common discussions on the topics of geography, cartography, and epidemiology. Where Snow’s book was read by few, the map has drawn a vast and global audience. And it is the allure of such powerful storytelling that gave rise to the convenient, though factually incorrect, history behind the map.
At Maps.com, we celebrate this power of maps. Whether from amateur mapmakers or seasoned cartographers who have dedicated a lifetime to the art and science of geography, cartography offers a perspective and pull that is unique. Maps inform, inspire, and ignite interest in a way that is unlike any other media.
That power comes with responsibility. As geographers, cartographers, and citizens of an ever-changing planet, it‘s all our responsibility to map—and record the history of maps—with honesty.
More to Explore
- Watch a presentation on early attempts to map disease.
- See how scientists used maps to understand the environmental impacts of the COVID-19 pandemic.

